Zakrzewo, Drożyska Wielkie

Dom na sprzedaż

Opis nieruchomości

Na sprzedaż nowoczesny budynek mieszkalny w stanie deweloperskim.
Pow. 140,51 m2 – Drożyska Wielkie – gmina Zakrzewo.

 

Drożyska Wielkie to wieś w powiecie złotowskim, w gminie Zakrzewo. To miejsce idealne do zamieszkania dla rodziny oraz wielbicieli przyrody.  Amatorzy malowniczych tras rowerowych i kajakowych mają tu możliwość podziwiania piękna natury oraz odkrywania ukrytych zakątków w regionie. Gmina Zakrzewo jest obszarem bogatym w pomniki przyrody, a jej wartość krajobrazowa jest spotęgowana przez obecność i dostęp do jezior, rzek oraz pobliskich Borów Kujańskich. Lasy pełne zwierzyny, czyste wody, ścieżki przyrodnicze to niebywały atut tej lokalizacji.

 

Na sprzedaż budynek mieszkalny jednorodzinny. Wejście główne do domu zaprojektowano od strony wjazdu na działkę (6 m od granicy północnej części). Dom zaprojektowano jako częściowo podpiwniczony z jedną kondygnacją nadziemną i dachem płaskim. Projektowane materiały budowlane (tradycyjne) - drewno, tynki mineralne, kamień na dach.


Zabudowę oraz układ komunikacyjny zaprojektowano tak, aby ograniczyć do minimum ingerencję w istniejącą szatę roślinną.


Powierzchnia terenu  - 1326,2 m2


Zgodnie z projektem Pracowni Projektowej B&M przewidziano dla tej inwestycji:

Powierzchnia zabudowy projektowanego budynku 176,30 m2.

Powierzchnia użytkowa 107,31 m2

Powierzchnia całkowita 355 m2

Kubatura budynku 772,12 m2

Długość budynku 17,20 m

Szerokość budynku 10,24 m

 

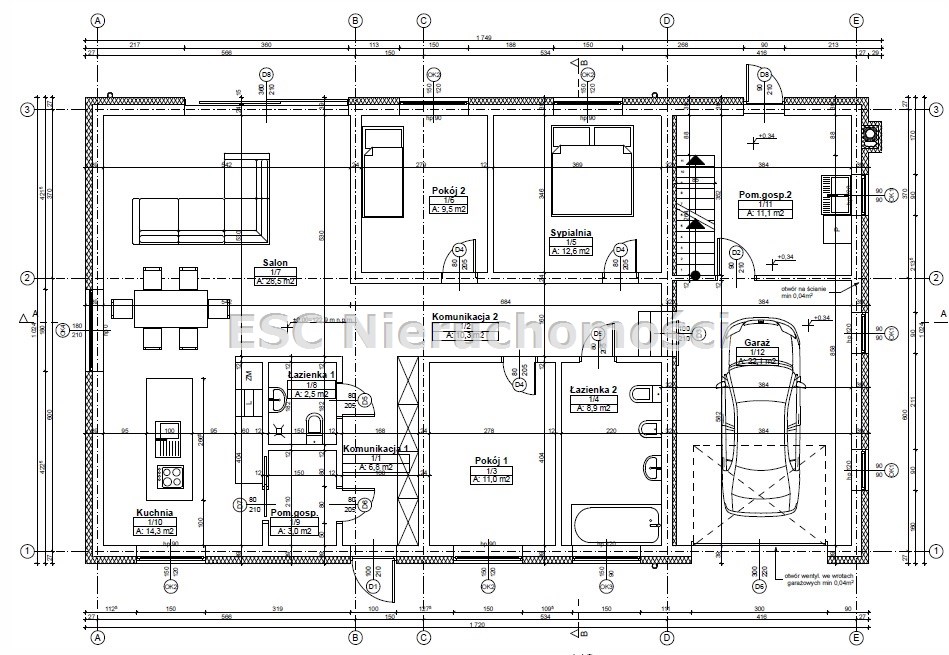
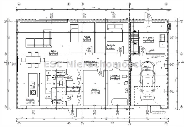
Zestawienie pomieszczeń:

Piwnica  o pow. 37,1 m2

Pomieszczenia na parterze (pow. użytkowa 140,6 m2)

Pokoje o pow. 11 m2 oraz  9,5 m2

Sypialnia o pow. 12,6 m2

Salon  o pow. 28,5 m2

Kuchnia o pow. 14,3 m2

Łazienki o pow. 8,9 m2 i 2,5 m2

Pomieszczenie gospodarcze o pow. 3 m2 oraz 11,1 m2

Komunikacja o pow. 6,8 m2 oraz 10,3 m2

Garaż w bryle budynku o pow. 22,1 m2


Budynek parterowy, częściowo podpiwniczony wykonany w technologii tradycyjnej murowanej z bloczków z betonu komórkowego. Pokrycie dachu stanowi stropodach pełny z powierzchniową warstwą ochronną.

Budynek zaprojektowano w wyposażenie następujących instalacji: 

- instalacje i urządzenia ciepłej i zimnej wody

- instalacje i urządzenia kanalizacji sanitarnej (instalacja wodociągowa zasilana z instalacji wiejskiej. Instalacja kanalizacji zbiornik bezodpływowy)

- instalacje i urządzenia elektryczne

- instalacje i urządzenia teletechniczne


Planowane wykonanie elewacji ma być z zastosowaniem drewna oraz tynku strukturalnego. Forma dachu odwróconego pokryta warstwą ochronną – żwir. Stolarka okienna PCV. Drzwiowa zewnętrzna – drzwi antywłamaniowe.


Obecnie wykonano już elektrykę przystosowaną do fotowoltaiki, pompy ciepła, rekuperacji oraz ogrzewania podłogowego
(dwa miejsca pomiarów temperatury – przy podłodze oraz na wysokości 1,2 m). Ogrzewanie podłogowe zaprojektowano na pow. ok 120 m2 budynku (wykonano chudziak, pozostawiono piasek do poziomowania instalacji). Wykonana jest też instalacja centralnego odkurzacza, poprowadzona kanalizacja. Sufity przygotowane do montażu sufitów podwieszanych (wysokość pomieszczeń to ponad 2,80 m). Dach docieplony warstwą ponad 30 cm styropianu. Rodzaje ogrzewania: pompa ciepła oraz piec na paliwo stałe. Zainstalowano fotowoltaikę nad częścią garażową. Jest też przewidziana możliwość dobudowania lekkiej konstrukcji szkieletowej na piętrze pod fotowoltaikę nad całym budynkiem lub jako pomieszczenia widokowego wraz z tarasem.

Wyprowadzono instalacje na zewnątrz budynku zgodnie z założeniem ewentualnej budowy ogrodu zimowego. Garaż z kanałem, który służy również jako zsyp na paliwo stałe -  z bramą na pilota.


Ten w założeniu inteligentny i pasywny budynek posiada instalację odgromową oraz wyprowadzenie pod instalację alarmową. Budynek spełniać będzie wymogi domu ekologicznego. Stan deweloperski, tzw. do wykończenia umożliwia własną aranżację. Położono tynki, pozostało do wykonania szpachlowanie i malowanie ścian wew.


Działka jest nieogrodzona, prowadzi do niej częściowo droga asfaltowa, następnie droga polna, utwardzona. W związku ze specyficznym ukształtowaniem terenu jest możliwość stworzenia oczka wodnego, stawu.

 

Do Gminy Zakrzewo w powiecie złotowskim można dojechać drogami wojewódzkimi nr 188 (Piła – Człuchów) oraz nr 189 (Jastrowie – Więcbork). Przez powiat biegną również drogi krajowe nr 11 i nr 22.
Do wsi Drożyska Wielkie dojazd drogami gminnymi.

 

Zapraszam na prezentację!

 

 

 

 

 

Nota prawna

Opis oferty zawarty na stronie internetowej sporządzany jest na podstawie oględzin nieruchomości oraz informacji uzyskanych od właściciela, może podlegać aktualizacji i nie stanowi oferty określonej w art. 66 i następnych K.C.

Szczegóły oferty

Symbol oferty ESC-DS-95493
Powierzchnia 176,30 m²
Powierzchnia użytkowa 140,51 m²
Liczba pokoi 4
Rodzaj domu jednorodzinny
Wymiary działki 1326,2 m
Okna PCV
Stan budynku do wykończenia

Lokalizacja

Kalkulator kredytowy

PLN
%
Wysokość raty

Kalkulator kosztów

PLN
PLN
PLN
PLN
PLN
PLN
%
PLN
Podatek od czynności cywilno-prawnych
Taksa notarialna (opłata notarialna)
VAT od taksy notarialnej (opłaty notarialnej)
Wniosek do WKW
VAT od wniosku do WKW
Prowizja agencji nieruchomości
VAT od prowizji agencji nieruchomości
Wypisy aktu notarialnego - około
RAZEM (cena + opłaty)

Napisz do nas

Proszę wypełnić to pole
Proszę wypełnić to pole
Proszę wypełnić to pole
Proszę wypełnić to pole
Trwa wysyłanie...

Ta strona wykorzystuje pliki cookies w celach statystycznych oraz w celu dostosowania naszych serwisów do indywidualnych potrzeb klientów. Zmiany ustawień dotyczących plików cookie można dokonać w dowolnej chwili modyfikując ustawienia przeglądarki. Korzystanie z tej strony bez zmian ustawień dotyczących cookies oznacza, że będą one zapisane w pamięci urządzenia.

rozumiem