Gołańcz (gw), Czeszewo

Dom na sprzedaż

Opis nieruchomości

PRZESTRONNY DOM W BUDOWIE Z DUŻĄ DZIAŁKĄ I STAWEM NA SPRZEDAŻ, CZESZEWO, GM. GOŁAŃCZ

DOM Z OGROMNYM POTENCJAŁEM DO INDYWIDUALNEJ ARANŻACJI, PIĘKNA DUŻA DZIAŁKA ZE STAWEM ORAZ DWA MUROWANE BUDYNKI GOSPODARCZE
 
MOŻLIWOŚĆ ZAMIANY NA MIESZKANIE MINIMUM 3 POKOJOWE !!!


to wszystko znajdziecie Państwo w miejscowości Czeszewo, gmina Gołańcz. W miejscowości panuje cisza i spokój, a nowi właściciele tej nieruchomości będą mogli się cieszyć wypoczynkiem na łonie natury z dala od hałasów i zgiełku miasta. 

W bliskiej odległości (ok. 300m) znajduje się piekne jezioro Czeszewskie z plażą oraz możliwością łowienia ryb.

PARAMETRY

Powierzchnia działki - 0,4200 HA
Powierzchnia całkowita domu - 318,06m2 (bez uwzględnienia skosów powierzchnia przypodłogowa 366,54m2)
Powierzchnia murowanych budynków gospodarczych - 130m2 oraz 110m2

Czeszewo - miejscowość położona w gminie Gołańcz,
-odległość od Gołańczy 7 km, w Gołańczy znajdują się markety: Biedronka, Dino, targowisko, przychodnia zdrowia, kościół, Urząd Miasta i Gminy, obiekt sportowy miejsci Orlik wraz ze stadionem, szkoła i przedszkole
-odległość od miejscowości Morakowo - 2,5km - tu znajduje sie również szkoła podstawowa
-odległość od Wągrowca - miasta Powiatowego 18km, w Wągrowcu znajdują się szkoły podstawowe jak i średnie, markety, szpital i wszelkie urzędy oraz piekne jezioro z deptakiem spacerowym i plażą miejską.


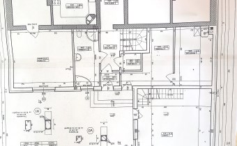
OPIS DOMU

Budynek mieszkalny jest wybudowany na fundamentach i częściowych murach z czerwonej cegły istniejącego tam kiedyś budynku oraz rozbudowany o nową część. Prowadzona jest pełna dokumentacja rozbudowy budynku wraz z projetem. 

PARTER - 179,57m2
  • Salon z aneksem kuchennym - 29,78m2
  • 3 pokoje o pow. 21,76m2, 16,06m2, 13,64m2
  • Łazienka z oknem - 9,15m2
  • Pomieszczenie gospodarcze - 2,05m2
  • Kuchnia letnia - 12,46 wraz z kotłownią - 13,27m2
  • Garaż - 41,74m2
  • Komunikacja 19,66m2
PODDASZE - 138,49m2
  • 4 pokoje o pow. 26,39m2, 26,48m2, 17,84m2, 19,05m2
  • Garderoba -. 8,85m2
  • Łazienka - 5,66m2
  • Korytarz - 9,49m2
  • Strych nad garażem - 24,64m2

MEDIA: woda i prąd na działce, planowany zbiornik bezodpływowy na nieczystości płynne

Budynek wybudowany z czerwonej cegły oraz suporexu, dach deskowany i przykryty papą, fundamenty ocieplone, również przy starszej części budynku, okna 2 szybowe, strop teriva na całości budynku. Nieruchomość częsciowo ogrodzona. 

Za domem znajdują się dwa murowane budynki gospodarcze oraz mały staw. 

Jeżeli chcecie Państwo obejrzeć tą wyjątkową nieruchomość - zapraszamy do umówienia się na spotkanie. 
Więcej zdjęc znajdziecie Państwo na naszej stronie www.furman24.pl

CENA: 410 000 zł. 

Nota prawna

Opis oferty zawarty na stronie internetowej sporządzany jest na podstawie oględzin nieruchomości oraz informacji uzyskanych od właściciela, może podlegać aktualizacji i nie stanowi oferty określonej w art. 66 i następnych K.C.

Szczegóły oferty

Symbol oferty FWR-DS-197314
Powierzchnia 318,06 m²
Powierzchnia użytkowa 318,06 m²
Powierzchnia działki 4 200 m²
Rodzaj domu wolnostojący
Garaż w bryle
Okna PCV

Kalkulator kredytowy

PLN
%
Wysokość raty

Kalkulator kosztów

PLN
PLN
PLN
PLN
PLN
PLN
%
PLN
Podatek od czynności cywilno-prawnych
Taksa notarialna (opłata notarialna)
VAT od taksy notarialnej (opłaty notarialnej)
Wniosek do WKW
VAT od wniosku do WKW
Prowizja agencji nieruchomości
VAT od prowizji agencji nieruchomości
Wypisy aktu notarialnego - około
RAZEM (cena + opłaty)

Podobne oferty

dom na sprzedaż - Gołańcz (gw), Laskownica Wielka

dom na sprzedaż

Gołańcz (gw), Laskownica Wielka
3 pokoje 101,00 m2 2 960,40 zł/m2

Napisz do nas

Proszę wypełnić to pole
Proszę wypełnić to pole
Proszę wypełnić to pole
Proszę wypełnić to pole
Trwa wysyłanie...

Ta strona wykorzystuje pliki cookies w celach statystycznych oraz w celu dostosowania naszych serwisów do indywidualnych potrzeb klientów. Zmiany ustawień dotyczących plików cookie można dokonać w dowolnej chwili modyfikując ustawienia przeglądarki. Korzystanie z tej strony bez zmian ustawień dotyczących cookies oznacza, że będą one zapisane w pamięci urządzenia.

rozumiem