Złotów

Dom na sprzedaż

Opis nieruchomości

Wyjątkowy dom wolnostojący w Złotowie 
Ten dom o powierzchni ok. 199 m² to propozycja dla osób, które cenią przestrzeń, prywatność i funkcjonalność – w doskonałej lokalizacji, w pobliżu Jezioro Zaleskie.  Przemyślana przestrzeń – idealna dla rodziny wielopokoleniowej

W bryle budynku znajduje się niezależne mieszkanie (ok. 54 m²) z odrębnym wejściem , zaprojektowane bez barier architektonicznych.

To doskonałe rozwiązanie dla:

  • seniorów,

  • osób z niepełnosprawnością,

  • dorastającego dziecka,

  • gości,

  • a także jako przestrzeń pod wynajem lub działalność.

Dom oferuje 3 łazienki i 2 kuchnie, co zapewnia pełną wygodę i niezależność domownikom.

Sercem domu  jest ponad 40-metrowy salon, pełen naturalnego światła, z bezpośrednim wyjściem na:

  • kameralny, intymny taras,

  • balkon.

To przestrzeń, w której poranna kawa smakuje lepiej, a rodzinne spotkania nabierają wyjątkowego klimatu. 

Działka o powierzchni ok. 650 m² daje swobodę aranżacji:

  • elegancki ogród,

  • strefa relaksu,

  • miejsce zabaw dla dzieci,
Ogrzewanie gazowe - piec dwufunkcyjny. Remont dachu ,  elewacji i wejścia do domu (schody) przeprowadzony ok. 3 lata temu.
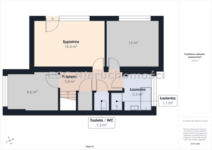
Rozkład pomieszczeń:
Dom
Poziom 0,5
  • Pokój  o pow. 16,6 m2 z wyjściem na balkon o pow. 4,9 m2
  • Kuchnia o pow. 12,6 m2
  • Łazienka o pow. 4,7 m2
  • Korytarz o pow. 4,4 m2
  • Hol z wejściem do salonu o pow. 9,9 m2
Poziom 1
  • Salon o pow. 40,3 m2 z wyjściem na taras o pow.  21 m2 oraz balkon o pow. 4,9 m2
Poziom 1,5
  • Sypialnia o pow. 16,4 m2
  • Sypialnia o pow. 12 m2
  • Sypialnia o pow. 9,6 m2
  • Łazienka o pow. 6,4 m2 z wanną i prysznicem
  • Wc o pow. 1,3 m2
  • Korytarz o pow. 5,6 m2
Mieszkanie na poziomie 0 bez barier architektonicznych
  • Salon z aneksem kuchennym o pow. 35,3 m2
  • Sypialnia o pow. 8,7 m2
  • Łazienka o pow. 7,5 m2
  • Korytarz o pow. 2,9 m2

ZAPRASZAM SERDECZNIE NA PREZENTACJĘ Powyższy opis ma charakter informacyjny i nie stanowi oferty w rozumieniu przepisu kodeksu cywilnego.
 

Nota prawna

Opis oferty zawarty na stronie internetowej sporządzany jest na podstawie oględzin nieruchomości oraz informacji uzyskanych od właściciela, może podlegać aktualizacji i nie stanowi oferty określonej w art. 66 i następnych K.C.

Szczegóły oferty

Symbol oferty FRP-DS-199097
Powierzchnia 198,90 m²
Powierzchnia użytkowa 198,90 m²
Powierzchnia działki 635 m²
Powierzchnia balkonów/tarasów 30,00 m²
Liczba pokoi 7
Rodzaj domu wolnostojący
Opłaty wg liczników gaz, prąd, woda
Garaż garaż
Okna DREWNIANE NOWY TYP
Instalacje dobre
Balkon jest
Liczba balkonów 2
Liczba tarasów 1
Zagosp. działki zagospodarowana
Ukształtowanie działki płaska
Kształt działki nieregularny
Pokrycie dachu blachodachówka
Stan budynku do odświeżenia
Podpiwniczenie tak
Ogrodzenie działki ogrodzona
Gaz jest
Woda ciepła - piecyk gazowy
Dojazd ASFALTOWA
Otoczenie zabudowa jednorodzinna
Ogrzewanie C.O. GAZOWE
Tarasy taras
Przystosowania dla niepełnosprawnych tak
Kanalizacja miejska
Klucze tak

Lokalizacja

Kalkulator kredytowy

PLN
%
Wysokość raty

Kalkulator kosztów

PLN
PLN
PLN
PLN
PLN
PLN
%
PLN
Podatek od czynności cywilno-prawnych
Taksa notarialna (opłata notarialna)
VAT od taksy notarialnej (opłaty notarialnej)
Wniosek do WKW
VAT od wniosku do WKW
Prowizja agencji nieruchomości
VAT od prowizji agencji nieruchomości
Wypisy aktu notarialnego - około
RAZEM (cena + opłaty)

Podobne oferty

dom na sprzedaż - Złotów

dom na sprzedaż

Złotów
10 pokoi 271,10 m2 3 651,79 zł/m2

Napisz do nas

Proszę wypełnić to pole
Proszę wypełnić to pole
Proszę wypełnić to pole
Proszę wypełnić to pole
Trwa wysyłanie...

Ta strona wykorzystuje pliki cookies w celach statystycznych oraz w celu dostosowania naszych serwisów do indywidualnych potrzeb klientów. Zmiany ustawień dotyczących plików cookie można dokonać w dowolnej chwili modyfikując ustawienia przeglądarki. Korzystanie z tej strony bez zmian ustawień dotyczących cookies oznacza, że będą one zapisane w pamięci urządzenia.

rozumiem