Piła, Gładyszewo

Działka na sprzedaż

Opis nieruchomości

DZIAŁKA BUDOWLANA  W PILE
UL. KAMIENNA

O POW. 1.226 m2
 
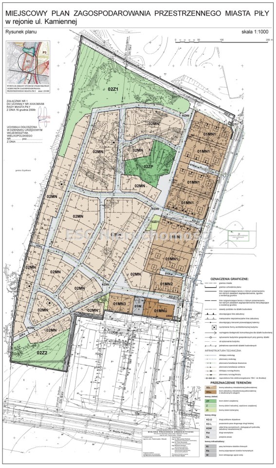
Zgodnie z obowiązującym planem zagospodarowania przestrzennego istnieje możliwość budowy:
- budynku mieszkalnego jednorodzinnego
- dach o kącie nachylenia minimum 35 stopni
- pow. zabudowy działki max 30%
- wysokość do II kondygnacji naziemnych, w tym poddasze użytkowe
-budynku gospodarczego w zabudowie bliźniaczej
- wysokość do I kondygnacji naziemnej,
- dach o koncie nachylenia minimum 20 stopni, dwuspadowy
- pow. zabudowy maksymalnie 60m2
-

UCHWAŁA NR XXVI/397/16
Rady Miasta Piły
z dnia 25 października 2016r.
w sprawie zmiany miejscowego planu zagospodarowania przestrzennego miasta Piły dla ulicy Kamiennej

Media:
- wodociąg w drodze (przy granicy działki)
-kanalizacja w drodze
-prąd na działce- jest już skrzynka
- gaz w drodze.

 
Działka ma regularny kształt prostokąta i położona jest w atrakcyjnym miejscu, na tworzącym się osiedlu nowoczesnych domów.


ZAPRASZAMY DO PREZENTACJI
 
BEZPŁATNA POMOC W UZYSKANIU KREDYTU !!!

 
Dane opisu nieruchomości podane są przez zamawiającego.
Powyższy opis ma charakter informacyjny i nie stanowi oferty w rozumieniu przepisów Kodeksu Cywilnego. Wszelkie prawa zastrzeżone!
Opis oraz zdjęcia są własnością biura.
Kopiowanie, powielanie, wykorzystywanie zdjęć i opisu bez zgody autora zabronione.

Nota prawna

Opis oferty zawarty na stronie internetowej sporządzany jest na podstawie oględzin nieruchomości oraz informacji uzyskanych od właściciela, może podlegać aktualizacji i nie stanowi oferty określonej w art. 66 i następnych K.C.

Szczegóły oferty

Symbol oferty ABC-GS-96943
Powierzchnia 1 226,00 m²
Przeznaczenie działki budowlana
Stan prawny własność
Zagosp. działki niezagospodarowana
Ukształtowanie działki płaska
Kształt działki prostokąt
Ogrodzenie działki brak
Gaz w ulicy
Woda w ulicy
Dojazd asfalt
Prąd na działce
Kanalizacja w ulicy

Lokalizacja

Kalkulator kredytowy

PLN
%
Wysokość raty

Kalkulator kosztów

PLN
PLN
PLN
PLN
PLN
PLN
%
PLN
Podatek od czynności cywilno-prawnych
Taksa notarialna (opłata notarialna)
VAT od taksy notarialnej (opłaty notarialnej)
Wniosek do WKW
VAT od wniosku do WKW
Prowizja agencji nieruchomości
VAT od prowizji agencji nieruchomości
Wypisy aktu notarialnego - około
RAZEM (cena + opłaty)

Podobne oferty

działka na sprzedaż - Piła, Gładyszewo

działka na sprzedaż

Piła, Gładyszewo
  1 210,00 m2 300,00 zł/m2
działka na sprzedaż - Piła, Gładyszewo

działka na sprzedaż

Piła, Gładyszewo
  1 012,00 m2 300,00 zł/m2
działka na sprzedaż - Piła, Gładyszewo

działka na sprzedaż

Piła, Gładyszewo
  1 012,00 m2 300,00 zł/m2
działka na sprzedaż - Piła, Gładyszewo

działka na sprzedaż

Piła, Gładyszewo
  1 237,00 m2 300,00 zł/m2

Napisz do nas

Proszę wypełnić to pole
Proszę wypełnić to pole
Proszę wypełnić to pole
Proszę wypełnić to pole
Trwa wysyłanie...

Ta strona wykorzystuje pliki cookies w celach statystycznych oraz w celu dostosowania naszych serwisów do indywidualnych potrzeb klientów. Zmiany ustawień dotyczących plików cookie można dokonać w dowolnej chwili modyfikując ustawienia przeglądarki. Korzystanie z tej strony bez zmian ustawień dotyczących cookies oznacza, że będą one zapisane w pamięci urządzenia.

rozumiem