Wysoka

Lokal na sprzedaż

Opis nieruchomości

Oferujemy lokal użytkowy wraz z dużą działką.

Obszar nieruchomości to 1,1828 ha. Całość działki jest ogrodzona.

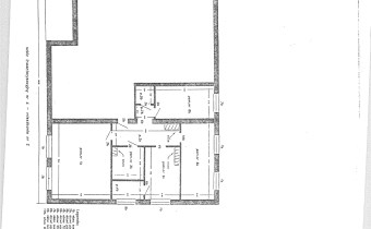
Lokal użytkowy to budynek o powierzchni zabudowy 238,1m2:
1. parter o łącznej powierzchni użytkowej 144,9 m2
2. piętro:
- mieszkanie nr 1 o powierzchni użytkowej 84,8 m2 składające się z 3 pokoi, kuchni, łazienki, wc, przedpokoju, pomieszczenie gospodarczego oraz loggia. Do mieszkania przynależna jest piwnica - 16m2.
- mieszkanie nr 2 o powierzchni użytkowej 72,4m2 składające się z  3 pokoi, kuchni, łazienki, wc, przedpokoju, pomieszczenia gospodarczego. Do mieszkania przynależna jest piwnica 14,6m2.

W piwnicy  dodatkowe wspólne pomieszczenie o powierzchni 16,5 m2.
Z tyłu budynku dobudowane pomieszczenie wchodzące w skład części wolnej parteru.
Łączna kubatura budynku 1950m3.

Do budynku prowadzi droga utwardzona. Nieruchomość posiada następujące urządzenia infrastruktury technicznej: energia elektryczna, wodociąg, kanalizacja i gaz.

Na działce znajduje się również budynek garażowy o powierzchni zabudowy 75,6 m2, na który składają się 3 garaże.
 

ZAPRASZAMY NA PREZENTACJĘ !!!

 

BEZPŁATNA POMOC w uzyskaniu kredytu !!!
 
Dane opisu nieruchomości podane są przez zamawiającego.
Powyższy opis ma charakter informacyjny i nie stanowi oferty w rozumieniu przepisów Kodeksu Cywilnego. Wszelkie prawa zastrzeżone!
Opis oraz zdjęcia są własnością biura.
Kopiowanie, powielanie, wykorzystywanie zdjęć i opisu bez zgody autora zabronione.

 

Nota prawna

Opis oferty zawarty na stronie internetowej sporządzany jest na podstawie oględzin nieruchomości oraz informacji uzyskanych od właściciela, może podlegać aktualizacji i nie stanowi oferty określonej w art. 66 i następnych K.C.

Szczegóły oferty

Symbol oferty ABC-LS-97233
Powierzchnia 11 828,00 m²

Kalkulator kredytowy

PLN
%
Wysokość raty

Kalkulator kosztów

PLN
PLN
PLN
PLN
PLN
PLN
%
PLN
Podatek od czynności cywilno-prawnych
Taksa notarialna (opłata notarialna)
VAT od taksy notarialnej (opłaty notarialnej)
Wniosek do WKW
VAT od wniosku do WKW
Prowizja agencji nieruchomości
VAT od prowizji agencji nieruchomości
Wypisy aktu notarialnego - około
RAZEM (cena + opłaty)

Napisz do nas

Proszę wypełnić to pole
Proszę wypełnić to pole
Proszę wypełnić to pole
Proszę wypełnić to pole
Trwa wysyłanie...

Ta strona wykorzystuje pliki cookies w celach statystycznych oraz w celu dostosowania naszych serwisów do indywidualnych potrzeb klientów. Zmiany ustawień dotyczących plików cookie można dokonać w dowolnej chwili modyfikując ustawienia przeglądarki. Korzystanie z tej strony bez zmian ustawień dotyczących cookies oznacza, że będą one zapisane w pamięci urządzenia.

rozumiem