Margonin

Mieszkanie na sprzedaż

Opis nieruchomości

NA SPRZEDAŻ MIESZKANIE 2-POKOJOWE NA II PIĘTRZE 
Z  OGÓLNODOSTĘPNYM MIEJSCEM POSTOJOWYM I WSPÓLNĄ KOMÓRKĄ LOKATORSKĄ W MARGONINIE.


NOWA INWESTYCJA  OSIEDLE POLNA W MARGONINIE.
 

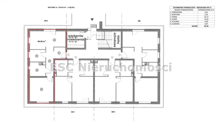
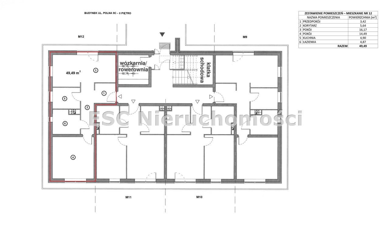
Powierzchnia lokalu mieszkalnego wynosi 49,49 m2, w skład którego wchodzi:
- pokój dzienny 16,17 m2
pokój 14,49 m2
- kuchnia 4,90 m2
- łazienka 4,87 m2
- przedpokój 3,42 m2
- korytarz 5,64 m2
Do mieszkania przynależy wspólna komórka lokatorska dla 4 mieszkań na danej kondygnacji o powierzchni 
6,19 m2.
 Komórka lokatorska znajduje się na II piętrze, co bardzo ułatwia korzystanie z niej w życiu codziennym. 

Mieszkania oddawane są w stanie deweloperskim.
Przedsiębiorca zapewnia ogólnodostępne miejsca postojowe.


W ramach podanej ceny mają Państwo zapewnione wykonanie:
- elewacji zewnętrznej,
- stolarki okiennej PCV - wewnątrz biała, na zewnątrz okleina w kolorze antracytowym, okna trzy szybowe z roletami zewnętrznymi
- instalacji wodno-kanalizacyjnych,
- instalacji C.O. - indywidualne, dwufunkcyjne kondensacyjne piece gazowe na CO i ciepłą wodę 
- instalacji elektrycznych - z sieci Dystrybutora Enea
- posadzki betonowe,
- sufity i ściany - tynki gipsowe maszynowe kat II, bez malowania, przygotowane pod szpachlowanie
- montaż drzwi wejściowych do lokali mieszkaniowych w kolorze antracyt
- parapety zewnętrzne -stalowe
 
Korzystając z naszych usług zapewniamy:
- 30-letnie doświadczenie na rynku nieruchomości,
- profesjonalną obsługę przez Licencjonowanego Pośrednika Nieruchomości,
- bezpłatną pomoc i doradztwo przy uzyskaniu kredytu hipotecznego,
- kupony rabatowe do różnych firm w ramach Programu Partnerskiego,
- rabat na wycenę nieruchomości,
- Kupujący nie płaci podatku PCC
Na sprzedaż również pozostałe mieszkania o wymiarach od 39,52 m2 do 49,86 m2 
Szczegółowe informacje dostępne w biurze oraz w ofertach pozostałych mieszkań.
PARTER:
https://www.furman24.pl/mieszkania-na-sprzedaz-margonin-ms-194555-o6126857
https://www.furman24.pl/mieszkania-na-sprzedaz-margonin-ms-194556-o6126858
https://www.furman24.pl/mieszkania-na-sprzedaz-margonin-ms-194557-o6126859
https://www.furman24.pl/mieszkania-na-sprzedaz-margonin-ms-194558-o6126860
I PIĘTRO:
https://www.furman24.pl/mieszkania-na-sprzedaz-margonin-ms-194559-o6126862
https://www.furman24.pl/mieszkania-na-sprzedaz-margonin-ms-194560-o6126863
https://www.furman24.pl/mieszkania-na-sprzedaz-margonin-ms-194561-o6126864
https://www.furman24.pl/mieszkania-na-sprzedaz-margonin-ms-194562-o6126865
II PIĘTRO:
https://www.furman24.pl/mieszkania-na-sprzedaz-margonin-ms-194563-o6126867
https://www.furman24.pl/mieszkania-na-sprzedaz-margonin-ms-194564-o6126868
https://www.furman24.pl/mieszkania-na-sprzedaz-margonin-ms-194565-o6126869
https://www.furman24.pl/mieszkania-na-sprzedaz-margonin-ms-194566-o6126871
III PIĘTRO:
https://www.furman24.pl/mieszkania-na-sprzedaz-margonin-ms-194567-o6126873
https://www.furman24.pl/mieszkania-na-sprzedaz-margonin-ms-194568-o6126876
https://www.furman24.pl/mieszkania-na-sprzedaz-margonin-ms-194569-o6126877
https://www.furman24.pl/mieszkania-na-sprzedaz-margonin-ms-194570-o6126878
TYLKO TERAZ - OBNIŻKA CENY !!
5 720 zł/m2
5 600 zł/m2

Podana cena jest ceną brutto, zawiera podatek VAT.
POLECAM I ZAPRASZAM NA PREZENTACJĘ

Jeśli szukacie Państwo większych mieszkań  z udogodnieniem dla osób starszych lub dzieci zapraszamy do zapoznania się z ofertą wolnych mieszkań w pierwszym bloku z windą:

https://www.furman24.pl/mieszkania-na-sprzedaz-margonin-ms-194526-o6126724

Nota prawna

Opis oferty zawarty na stronie internetowej sporządzany jest na podstawie oględzin nieruchomości oraz informacji uzyskanych od właściciela, może podlegać aktualizacji i nie stanowi oferty określonej w art. 66 i następnych K.C.

Szczegóły oferty

Symbol oferty FRC-MS-194566
Powierzchnia 49,49 m²
Powierzchnia użytkowa 49,49 m²
Liczba pokoi 2
Piętro 2
Rodzaj budynku blok
Technologia budowlana silikat
Opłaty wg liczników gaz, prąd
Liczba pięter w budynku 3
Stan lokalu deweloperski
Stan prawny Własność
Okna PCV
Instalacje nowe
Balkon jest
Liczba balkonów 1
Rok budowy 2022
Widok na inne budynki
Gaz tak - miejski
Woda ciepła - piecyk gazowy
Dojazd asfalt
Otoczenie działki zabudowane
Ogrzewanie C.O. GAZOWE

Pomieszczenia

Powierzchnia pokoi 16,17;14,49 m2
Podłogi pokoi wylewka betonowa
Typ kuchni oddzielna
Rodzaj kuchni jasna z oknem
Powierzchnia kuchni 4,90 m2
Podłoga kuchni wylewka betonowa
Typ łazienki razem z wc
Liczba łazienek 1
Powierzchnia łazienki 4,87 m2
Podłoga łazienki wylewka betonowa
Liczba przedpokoi 2
Powierzchnia przedpokoi 5,64;3,42 m2
Podłoga przedpokoi wylewka betonowa

Lokalizacja

Kalkulator kredytowy

PLN
%
Wysokość raty

Kalkulator kosztów

PLN
PLN
PLN
PLN
PLN
PLN
%
PLN
Podatek od czynności cywilno-prawnych
Taksa notarialna (opłata notarialna)
VAT od taksy notarialnej (opłaty notarialnej)
Wniosek do WKW
VAT od wniosku do WKW
Prowizja agencji nieruchomości
VAT od prowizji agencji nieruchomości
Wypisy aktu notarialnego - około
RAZEM (cena + opłaty)

Podobne oferty

video
mieszkanie na sprzedaż - Margonin

mieszkanie na sprzedaż

Margonin
2 pokoje 48,10 m2 6 000,00 zł/m2
video
mieszkanie na sprzedaż - Margonin

mieszkanie na sprzedaż

Margonin
2 pokoje 53,17 m2 5 940,00 zł/m2
video
mieszkanie na sprzedaż - Margonin

mieszkanie na sprzedaż

Margonin
3 pokoje 60,51 m2 5 800,00 zł/m2
video
mieszkanie na sprzedaż - Margonin

mieszkanie na sprzedaż

Margonin
3 pokoje 60,34 m2 5 800,00 zł/m2

Napisz do nas

Proszę wypełnić to pole
Proszę wypełnić to pole
Proszę wypełnić to pole
Proszę wypełnić to pole
Trwa wysyłanie...

Ta strona wykorzystuje pliki cookies w celach statystycznych oraz w celu dostosowania naszych serwisów do indywidualnych potrzeb klientów. Zmiany ustawień dotyczących plików cookie można dokonać w dowolnej chwili modyfikując ustawienia przeglądarki. Korzystanie z tej strony bez zmian ustawień dotyczących cookies oznacza, że będą one zapisane w pamięci urządzenia.

rozumiem