Margonin

Mieszkanie na sprzedaż

Opis nieruchomości

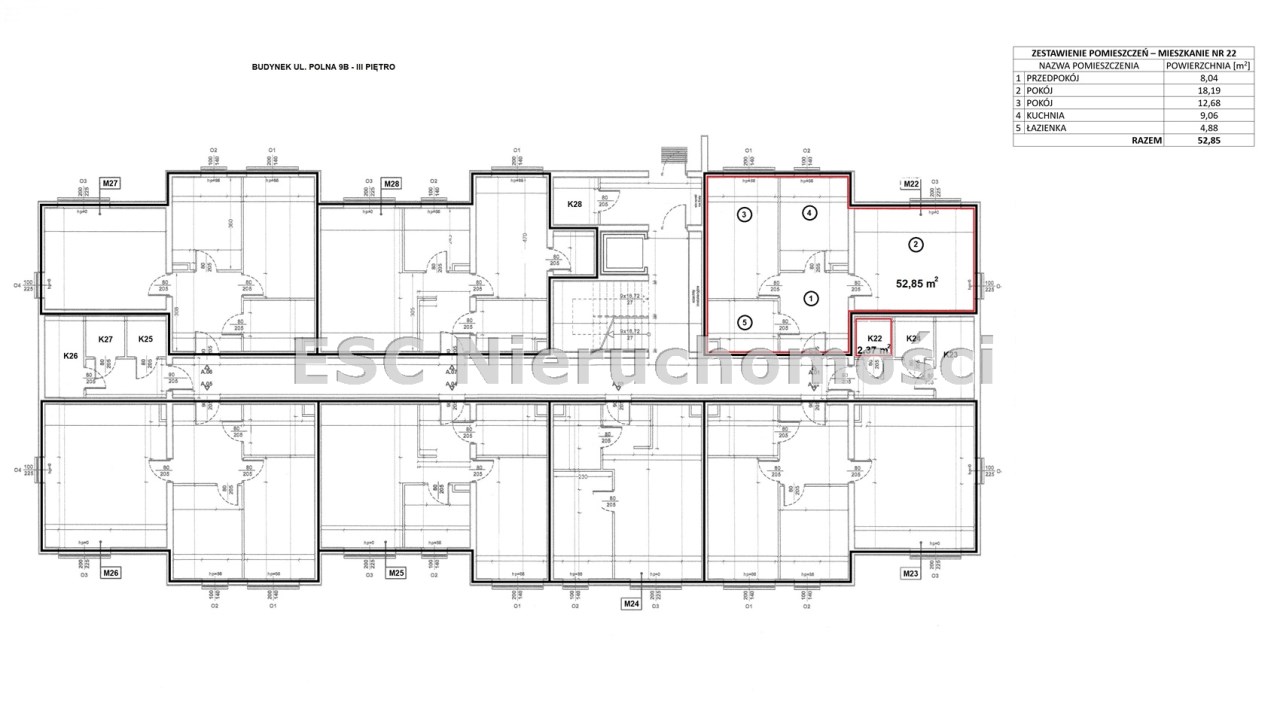
NA SPRZEDAŻ MIESZKANIE 2-POKOJOWE NA III PIĘTRZE 
Z  OGÓLNODOSTĘPNYM MIEJSCEM POSTOJOWYM, KOMÓRKĄ LOKATORSKĄ W NOWYM BLOKU Z WINDĄ W MARGONINIE.


NOWA INWESTYCJA  OSIEDLE POLNA W MARGONINIE.

BLOK Z WINDĄ !!

 

Powierzchnia lokalu mieszkalnego wynosi 52,85 m2, w skład którego wchodzi:
- pokój dzienny 18,19 m2
pokój 12,68 m2
- kuchnia 9,06 m2
- łazienka 4,88 m2
- przedpokój 8,04 m2
Do mieszkania przynależy komórka lokatorska o powierzchni 2,37 m2. Komórka lokatorska znajduje się na
III piętrze, co bardzo ułatwia korzystanie z niej w życiu codziennym. 

Mieszkania oddawane w stanie deweloperskim + ogólnodostępne miejsca postojowe.


W ramach podanej ceny mają Państwo zapewnione wykonanie:
- elewacji zewnętrznej,
- stolarki okiennej PCV - wewnątrz biała, na zewnątrz okleina w kolorze antracytowym, okna trzy szybowe z roletami zewnętrznymi
- instalacji wodno-kanalizacyjnych,
- instalacji C.O. - indywidualne, dwufunkcyjne kondensacyjne piece gazowe na CO i ciepłą wodę 
- instalacji elektrycznych - z sieci Dystrybutora Enea
- posadzki betonowe,
- sufity i ściany - tynki gipsowe maszynowe kat II, bez malowania, przygotowane pod szpachlowanie
- montaż drzwi wejściowych do lokali mieszkaniowych w kolorze antracyt
- parapety zewnętrzne -stalowe
 
Korzystając z naszych usług zapewniamy:
- 30-letnie doświadczenie na rynku nieruchomości,
- profesjonalną obsługę przez Licencjonowanego Pośrednika Nieruchomości,
- bezpłatną pomoc i doradztwo przy uzyskaniu kredytu hipotecznego,
- kupony rabatowe do różnych firm w ramach Programu Partnerskiego,
- rabat na wycenę nieruchomości,
- Kupujący nie płaci podatku PCC
Na sprzedaż również pozostałe mieszkania o wymiarach od 48,10 m2 do 60,84 m2
Szczegółowe informacje dostępne w biurze oraz w ofertach pozostałych mieszkań.
I PIĘTRO:
https://www.furman24.pl/mieszkania-na-sprzedaz-margonin-ms-194534-o6126831
https://www.furman24.pl/mieszkania-na-sprzedaz-margonin-ms-194535-o6126833
https://www.furman24.pl/mieszkania-na-sprzedaz-margonin-ms-194538-o6126837
https://www.furman24.pl/mieszkania-na-sprzedaz-margonin-ms-194539-o6126838
https://www.furman24.pl/mieszkania-na-sprzedaz-margonin-ms-194540-o6126839
II PIĘTRO:
https://www.furman24.pl/mieszkania-na-sprzedaz-margonin-ms-194541-o6126840
https://www.furman24.pl/mieszkania-na-sprzedaz-margonin-ms-194542-o6126842
https://www.furman24.pl/mieszkania-na-sprzedaz-margonin-ms-194545-o6126847
https://www.furman24.pl/mieszkania-na-sprzedaz-margonin-ms-194546-o6126848
https://www.furman24.pl/mieszkania-na-sprzedaz-margonin-ms-194547-o6126849
III PIĘTRO:
https://www.furman24.pl/mieszkania-na-sprzedaz-margonin-ms-194548-o6126850
https://www.furman24.pl/mieszkania-na-sprzedaz-margonin-ms-194549-o6126851
https://www.furman24.pl/mieszkania-na-sprzedaz-margonin-ms-194551-o6126853
https://www.furman24.pl/mieszkania-na-sprzedaz-margonin-ms-194554-o6126856
Cena 6 000 zł/ m2
Podana cena jest ceną brutto, zawiera podatek VAT.
POLECAM I ZAPRASZAM NA PREZENTACJĘ

 

Nota prawna

Opis oferty zawarty na stronie internetowej sporządzany jest na podstawie oględzin nieruchomości oraz informacji uzyskanych od właściciela, może podlegać aktualizacji i nie stanowi oferty określonej w art. 66 i następnych K.C.

Szczegóły oferty

Symbol oferty FRC-MS-194548
Powierzchnia 52,85 m²
Powierzchnia użytkowa 52,85 m²
Liczba pokoi 2
Piętro 3
Rodzaj budynku blok
Technologia budowlana silikat
Opłaty wg liczników gaz, prąd
Liczba pięter w budynku 3
Stan lokalu deweloperski
Stan prawny Własność
Okna PCV
Instalacje nowe
Balkon jest
Liczba balkonów 1
Rok budowy 2022
Widok na inne budynki
Gaz tak - miejski
Dojazd asfalt
Otoczenie działki zabudowane
Ogrzewanie C.O. GAZOWE
Winda tak
Liczba wind 1

Pomieszczenia

Powierzchnia pokoi 18,19;12,68 m2
Podłogi pokoi wylewka betonowa
Rodzaj kuchni jasna z oknem
Powierzchnia kuchni 9,06 m2
Podłoga kuchni wylewka betonowa
Typ łazienki razem z wc
Liczba łazienek 1
Powierzchnia łazienki 4,88 m2
Podłoga łazienki wylewka betonowa
Liczba przedpokoi 1
Powierzchnia przedpokoi 8,04 m2
Podłoga przedpokoi wylewka betonowa

Lokalizacja

Kalkulator kredytowy

PLN
%
Wysokość raty

Kalkulator kosztów

PLN
PLN
PLN
PLN
PLN
PLN
%
PLN
Podatek od czynności cywilno-prawnych
Taksa notarialna (opłata notarialna)
VAT od taksy notarialnej (opłaty notarialnej)
Wniosek do WKW
VAT od wniosku do WKW
Prowizja agencji nieruchomości
VAT od prowizji agencji nieruchomości
Wypisy aktu notarialnego - około
RAZEM (cena + opłaty)

Podobne oferty

video
mieszkanie na sprzedaż - Margonin

mieszkanie na sprzedaż

Margonin
2 pokoje 48,10 m2 6 000,00 zł/m2
video
mieszkanie na sprzedaż - Margonin

mieszkanie na sprzedaż

Margonin
2 pokoje 53,17 m2 5 940,00 zł/m2
video
mieszkanie na sprzedaż - Margonin

mieszkanie na sprzedaż

Margonin
3 pokoje 60,51 m2 5 800,00 zł/m2
video
mieszkanie na sprzedaż - Margonin

mieszkanie na sprzedaż

Margonin
3 pokoje 60,34 m2 5 800,00 zł/m2

Napisz do nas

Proszę wypełnić to pole
Proszę wypełnić to pole
Proszę wypełnić to pole
Proszę wypełnić to pole
Trwa wysyłanie...

Ta strona wykorzystuje pliki cookies w celach statystycznych oraz w celu dostosowania naszych serwisów do indywidualnych potrzeb klientów. Zmiany ustawień dotyczących plików cookie można dokonać w dowolnej chwili modyfikując ustawienia przeglądarki. Korzystanie z tej strony bez zmian ustawień dotyczących cookies oznacza, że będą one zapisane w pamięci urządzenia.

rozumiem