Piła, Zamość

Mieszkanie na sprzedaż

Opis nieruchomości

Przytulne 2-pokojowe mieszkanie | 38,40 m² | Balkon | Piła

Na sprzedaż komfortowe mieszkanie o powierzchni 38,40 m², usytuowane na 3. piętrze w ocieplonym, zadbanym bloku w Pile. Lokal stanowi doskonałą propozycję zarówno dla osób szukających pierwszego mieszkania, jak i pod inwestycję.

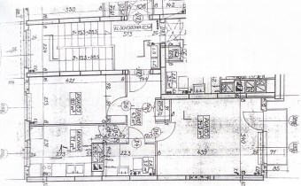
Układ pomieszczeń:
przestronny salon z wyjściem na balkon,
- drugi, ustawny pokój,
- oddzielna, wygodna kuchnia z oknem,
- łazienka (bez instalacji gazowej – zwiększone bezpieczeństwo),
- funkcjonalny przedpokój.

Do mieszkania przynależy również piwnica.
Czynsz ok. 500 zł/mies. (w tym m. in.: ogrzewanie, ciepła woda, wywóz odpadów).

Dodatkowe atuty nieruchomości:
Balkon z bezpośrednim widokiem na zieleń i drzewa – cisza i prywatność.
- Mieszkanie bardzo przytulne, ciche i jasne.
- Spokojne, zadbane otoczenie oraz przyjazne sąsiedztwo.
- Dostępne miejsca postojowe tuż przy bloku.

Znakomita lokalizacja:
Nieruchomość znajduje się w bardzo dobrze skomunikowanej części miasta:
- ok. 200 m do przystanków czterech linii autobusowych,
- szkoła tuż obok,
- przedszkole ok. 100 m,
- apteki, przychodnie, poczta,
- dwa kościoły,
- rynek oraz duży obiekt handlowo-usługowy z licznymi sklepami.

Wszystkie najważniejsze punkty codziennego życia znajdują się w bezpośrednim sąsiedztwie.

Zapraszam do kontaktu oraz na prezentację nieruchomości.

Nota prawna

Opis oferty zawarty na stronie internetowej sporządzany jest na podstawie oględzin nieruchomości oraz informacji uzyskanych od właściciela, może podlegać aktualizacji i nie stanowi oferty określonej w art. 66 i następnych K.C.

Szczegóły oferty

Symbol oferty FRP-MS-199070
Powierzchnia 38,40 m²
Powierzchnia użytkowa 38,40 m²
Liczba pokoi 2
Piętro 3
Rodzaj budynku blok
Opłaty w czynszu wywóz śmieci, woda ciepła, CO, Części wspólne, woda, fundusz remontowy, administracja
Liczba pięter w budynku 4
Stan lokalu do wprowadzenia
Stan prawny Spółdzielcze własnościowe
Mies. czynsz admin. 549 PLN
Okna PCV
Balkon jest
Liczba balkonów 1
Widok na osiedle
Gaz jest
Woda ciepła - miejska
Dojazd ASFALTOWA
Otoczenie bloki
Ogrzewanie C.O. miejskie
Usytuowanie dwustronne
Klucze tak

Pomieszczenia

Typ kuchni umeblowana i wyposażona
Rodzaj kuchni oddzielna

Lokalizacja

Kalkulator kredytowy

PLN
%
Wysokość raty

Kalkulator kosztów

PLN
PLN
PLN
PLN
PLN
PLN
%
PLN
Podatek od czynności cywilno-prawnych
Taksa notarialna (opłata notarialna)
VAT od taksy notarialnej (opłaty notarialnej)
Wniosek do WKW
VAT od wniosku do WKW
Prowizja agencji nieruchomości
VAT od prowizji agencji nieruchomości
Wypisy aktu notarialnego - około
RAZEM (cena + opłaty)

Podobne oferty

mieszkanie na sprzedaż - Piła

mieszkanie na sprzedaż

Piła
1 pokój 29,37 m2 8 600,00 zł/m2
mieszkanie na sprzedaż - Piła, Śródmieście

mieszkanie na sprzedaż

Piła, Śródmieście
2 pokoje 62,37 m2 4 633,64 zł/m2
mieszkanie na sprzedaż - Piła, Zielona Dolina

mieszkanie na sprzedaż

Piła, Zielona Dolina
1 pokój 38,80 m2 7 989,69 zł/m2
mieszkanie na sprzedaż - Piła

mieszkanie na sprzedaż

Piła
2 pokoje 51,60 m2 6 395,35 zł/m2

Napisz do nas

Proszę wypełnić to pole
Proszę wypełnić to pole
Proszę wypełnić to pole
Proszę wypełnić to pole
Trwa wysyłanie...

Ta strona wykorzystuje pliki cookies w celach statystycznych oraz w celu dostosowania naszych serwisów do indywidualnych potrzeb klientów. Zmiany ustawień dotyczących plików cookie można dokonać w dowolnej chwili modyfikując ustawienia przeglądarki. Korzystanie z tej strony bez zmian ustawień dotyczących cookies oznacza, że będą one zapisane w pamięci urządzenia.

rozumiem