Piła

Obiekt na sprzedaż

Opis nieruchomości

GOTOWA BAZA DLA FIRMY INSTALACYJNEJ – KOMPLEKS BUDYNKÓW + DZIAŁKA 3712 m² + DZIAŁAJĄCY BIZNES

Na sprzedaż nieruchomość komercyjna stanowiąca w pełni funkcjonującą bazę operacyjną firmy z branży instalacyjnej wodno-kanalizacyjnej, położona w obszarze koncentracji zabudowy produkcyjno-usługowej w Pile, przy ul. Przemysłowej 9a.

Oferta skierowana do inwestora branżowego lub przedsiębiorcy, który poszukuje:

  • gotowej infrastruktury do prowadzenia działalności,

  • dużej działki z możliwością dalszego rozwoju,

  • lub przejęcia działającego biznesu wraz z zapleczem operacyjnym.


DZIAŁKA – 3712 m² GRUNTU W LOKALIZACJI PRZEMYSŁOWEJ

Nieruchomość obejmuje działkę o powierzchni 3712 m², co w realiach miejskich stanowi znaczący atut operacyjny.

Duża powierzchnia gruntu zapewnia:

  • pełną logistykę dojazdu i manewrowania,

  • utwardzone place składowe,

  • parking dla klientów i pracowników,

  • możliwość dalszej rozbudowy lub reorganizacji zabudowy,

  • rezerwę inwestycyjną.

Teren ogrodzony, monitorowany, z bezpośrednim dojazdem drogą asfaltową.


ZABUDOWA – 357,47 m² GOTOWEJ INFRASTRUKTURY

Na nieruchomości znajduje się łącznie 357,47 m² powierzchni użytkowej, obejmującej:

1. Zespół budynków magazynowo-biurowych (zaplecze operacyjne):
* budynek biurowy o pow. 25,65 m²
*
hala magazynowa o pow. 179,59 m²
* pawilon o pow. 70,57 m²

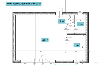
2. Nowy budynek frontowy o funkcji usługowo-handlowej – pow. 77 m²

Budynek może pełnić rolę:

  • biura obsługi klienta,

  • części handlowej,

  • showroomu,

  • siedziby firmy.

To element zwiększający wartość nieruchomości – pozwala prowadzić działalność wizerunkową bez konieczności dodatkowych nakładów.


INFRASTRUKTURA

Pełne uzbrojenie:

  • energia elektryczna,

  • woda,

  • kanalizacja,

Nieruchomość nie wymaga nakładów infrastrukturalnych – jest gotowa do bieżącego użytkowania.


PRZEZNACZENIE

Brak obowiązującego MPZP.
W studium teren przeznaczony pod: 
usługi oraz działalność produkcyjną.

Szeroki zakres dopuszczalnych funkcji zwiększa elastyczność inwestycyjną i minimalizuje ryzyko planistyczne.


STRUKTURA PRAWNA

  • Działka - prawo użytkowania wieczystego do 05.12.2089 r.

  • Budynki - własność..


OPCJA NR 2 – PRZEJĘCIE CAŁEGO PRZEDSIĘBIORSTWA

Nieruchomość może zostać nabyta w formule rozszerzonej – wraz z funkcjonującym przedsiębiorstwem z branży wodno-instalacyjnej.

Wariant inwestycyjny obejmuje:

  • przejęcie aktywów operacyjnych, min. maszyny i urządzenia, narzędzia instalacyjne, wyposażenie magazynu, samochody firmowe,

  • bazę klientów,

  • wypracowaną pozycję rynkową,

  • know-how,

  • zaplecze magazynowe i biurowe,

  • ciągłość działalności bez przestoju.

To nie jest sprzedaż „lokalu”.
To możliwość przejęcia gotowego, funkcjonującego organizmu gospodarczego.

Szczegóły finansowe i organizacyjne udostępniane po podpisaniu NDA.


PROFIL NABYWCY

  • inwestor branżowy (HVAC / instalacje sanitarne / budownictwo),

  • hurtownia techniki instalacyjnej,

  • podmiot logistyczny,

  • przedsiębiorca poszukujący zaplecza operacyjnego z potencjałem wzrostu,


KLUCZOWE WARTOŚCI INWESTYCYJNE

  • duża działka z rezerwą rozwojową
  • reprezentacyjny budynek frontowy
  • zaplecze magazynowo-biurowe
  • pełne uzbrojenie
  • przemysłowa lokalizacja bez konfliktu funkcji
  • możliwość przejęcia funkcjonującego biznesu
Cena:
* w opcji zakupu pełnej nieruchomości - 2.303.000 zł netto
* w opcji zakupu nieruchomości wraz ze sprzętem - 2.303.000 + 737.500 zł netto


 

Nota prawna

Opis oferty zawarty na stronie internetowej sporządzany jest na podstawie oględzin nieruchomości oraz informacji uzyskanych od właściciela, może podlegać aktualizacji i nie stanowi oferty określonej w art. 66 i następnych K.C.

Szczegóły oferty

Symbol oferty FRP-BS-199049
Powierzchnia 3 712,00 m²
Powierzchnia działki 3 712 m²
Stan prawny Użytkowanie wieczyste
Rok budowy 2026

Lokalizacja

Kalkulator kredytowy

PLN
%
Wysokość raty

Kalkulator kosztów

PLN
PLN
PLN
PLN
PLN
PLN
%
PLN
Podatek od czynności cywilno-prawnych
Taksa notarialna (opłata notarialna)
VAT od taksy notarialnej (opłaty notarialnej)
Wniosek do WKW
VAT od wniosku do WKW
Prowizja agencji nieruchomości
VAT od prowizji agencji nieruchomości
Wypisy aktu notarialnego - około
RAZEM (cena + opłaty)

Napisz do nas

Proszę wypełnić to pole
Proszę wypełnić to pole
Proszę wypełnić to pole
Proszę wypełnić to pole
Trwa wysyłanie...

Ta strona wykorzystuje pliki cookies w celach statystycznych oraz w celu dostosowania naszych serwisów do indywidualnych potrzeb klientów. Zmiany ustawień dotyczących plików cookie można dokonać w dowolnej chwili modyfikując ustawienia przeglądarki. Korzystanie z tej strony bez zmian ustawień dotyczących cookies oznacza, że będą one zapisane w pamięci urządzenia.

rozumiem