Chodzież

Obiekt na sprzedaż

Opis nieruchomości

NA SPRZEDAŻ KAMIENICA W CENTRUM CHODZIEŻY

 Przedmiotem oferty jest budynek mieszkalny o powierzchni użytkowej 273,06 m2 oraz budynek gospodarczy o pow. 68,60 m2.
Nieruchomość położona w centrum miasta na działce o powierzchni 482 m2.
Budynek w zabudowie wolnostojącej, dwukondygnacyjny, częściowo podpiwniczony.

Nieruchomość z bardzo dużym potencjałem inwestycyjnym, w którym można wydzielić 4 przestronne i funkcjonalne
lokale mieszkalne o pow. ok. 60 m2 każdy.
(opracowano projekt zmiany)


Nieruchomość pusta, wolna od lokatorów !!!

Obecnie na powierzchnię użytkową nieruchomości składają się:

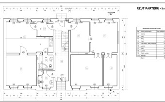
PARTER o pow. 134,10 m2 (rzut w galerii zdjęć)
 - lokal mieszkalny o pow. 64,77 m2 - 3 pokoje, kuchnia, łazienka w korytarzu
- lokal mieszkalny o pow. 54,93 m2 - 2 pokoje, kuchnia, łazienka, wiatrołap 
- komunikacja wraz z klatką schodową o pow. 14,40 m2

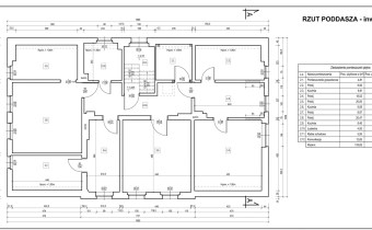
PIĘTRO o pow. 138,96 m2 (rzut w galerii zdjęć)
- powierzchnia mieszkalna (115,55 m2) składająca się z 5 pokoi, 3 kuchni, łazienki
- pomieszczenie gospodarcze o pow. 4,81 m2 z wejścia na strych
- komunikacja wraz z klatką schodową o pow. 18,60 m2

Piwnica podzielona na boksy przydzielone do lokali wraz z komunikacją. Łączna powierzchni wynosi 64,50 m2

Budynek gospodarczy podzielony jest na część handlową z wejściem od strony ulicy oraz część gospodarczą.

Teren wokół budynków stanowi podwórze oraz przydomowy ogródek.
Działka przylega bezpośrednio do chodnika.
 Ogrodzenie wykonane z elementów blaszanych i siatki stalowej od strony ogrodu.

Budynek posiada wszystkie niezbędne przyłącza do mediów, takie jak: woda, prąd, gaz i kanalizacja, ogrzewanie miejskie.


 Nieruchomość zlokalizowana jest w centrum miasta.
Najbliższe otoczenie stanowią punkty handlowo - usługowe, restauracja, przychodnia, apteka, a w niedalekiej odległości Dworzec PKP i szpital.

CENA SPRZEDAŻY 449 000 ZŁ 

Polecam i zapraszam do kontaktu !!!

Nota prawna

Opis oferty zawarty na stronie internetowej sporządzany jest na podstawie oględzin nieruchomości oraz informacji uzyskanych od właściciela, może podlegać aktualizacji i nie stanowi oferty określonej w art. 66 i następnych K.C.

Szczegóły oferty

Symbol oferty FRC-BS-198498
Powierzchnia 273,06 m²
Powierzchnia działki 482 m²
Rodzaj obiektu kamienica
Opłaty wg liczników CO, gaz, prąd, woda, Wywóz śmieci
Liczba pięter w budynku 2
Okna PCV
Instalacje dobre
Balkon brak
Zagosp. działki częściowo zagospodarowana
Ukształtowanie działki płaska
Kształt działki nieregularny
Pokrycie dachu płyta falista
Podpiwniczenie tak
Rok budowy 1906
Gaz tak - miejski
Woda tak - miejska
Dojazd asfalt
Otoczenie działki zabudowane
Ogrzewanie miejskie
Odległość do komunikacji publicznej [m] 100 m
Wejście od ulicy
Prąd jest
Kanalizacja miejska
Klucze tak

Lokalizacja

Kalkulator kredytowy

PLN
%
Wysokość raty

Kalkulator kosztów

PLN
PLN
PLN
PLN
PLN
PLN
%
PLN
Podatek od czynności cywilno-prawnych
Taksa notarialna (opłata notarialna)
VAT od taksy notarialnej (opłaty notarialnej)
Wniosek do WKW
VAT od wniosku do WKW
Prowizja agencji nieruchomości
VAT od prowizji agencji nieruchomości
Wypisy aktu notarialnego - około
RAZEM (cena + opłaty)

Napisz do nas

Proszę wypełnić to pole
Proszę wypełnić to pole
Proszę wypełnić to pole
Proszę wypełnić to pole
Trwa wysyłanie...

Ta strona wykorzystuje pliki cookies w celach statystycznych oraz w celu dostosowania naszych serwisów do indywidualnych potrzeb klientów. Zmiany ustawień dotyczących plików cookie można dokonać w dowolnej chwili modyfikując ustawienia przeglądarki. Korzystanie z tej strony bez zmian ustawień dotyczących cookies oznacza, że będą one zapisane w pamięci urządzenia.

rozumiem